Проект пешеходного перехода

В сотрудничестве с акционерным обществом “Узбекистанские железные дороги” ведется работа над проектом постройки пешеходного перехода длиной более 35 метров над железнодорожными путями в городе Ташкент, в областях Джизак и Кашкадарья для обеспечения безопасного и непрерывного пересечения железной дороги населением. В первую очередь проводятся геологические исследования для изучения состояния земельных слоев, а также подготовка топографических материалов […]
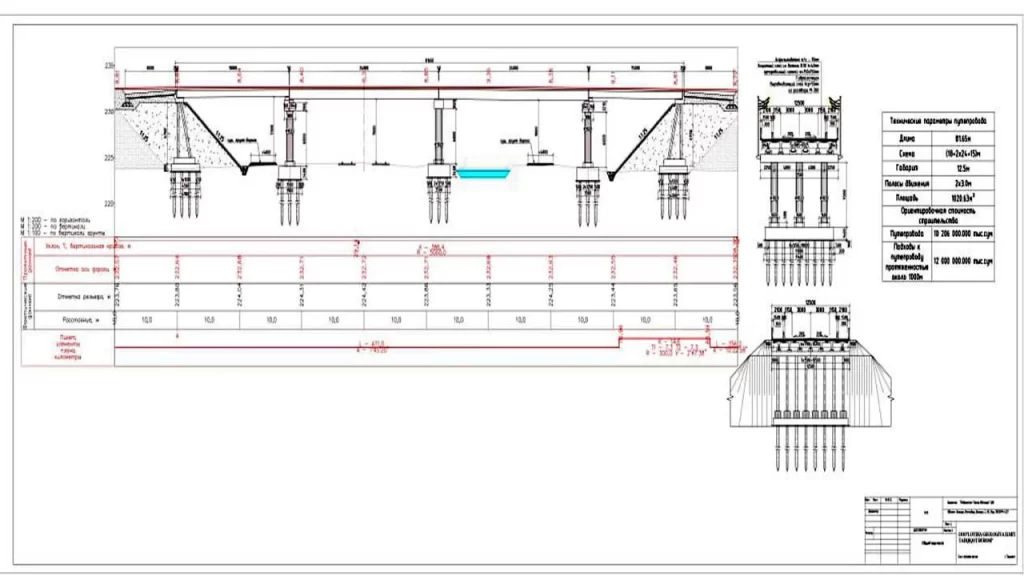
Стартовал проект нового моста

В сотрудничестве с акционерным обществом “Узбекистанские железные дороги” ведется работа над проектом строительства моста длиной более 97 метров над железнодорожными путями в Бухарской области для обеспечения безопасного и непрерывного пересечения железной дороги автотранспортными средствами. Вместе с проведением геологических исследований, в указанных выше районах подготавливаются топографические материалы.